










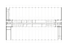
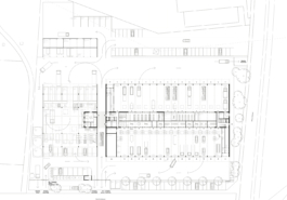
Mit dem Neubau der Mehrzweckanlage Effretikon entsteht eine zukunftsgerichtete Anlage. Sie besticht durch ihre Einfachheit und setzt die betriebstechnischen Abläufe an erste Stelle. Eine zentrale Mittelachse als vielseitige Nutzungsschicht schafft Synergien zwischen den einzelnen Nutzern und bildet das Rückgrat der neuen Anlage. Die ausgeklügelte Holzskelettbauweise vereint die drei Nutzungen auf eine elegante Art unter einem gemeinsamen Dach.
Zusammenarbeit
studio te GmbH, Zürich
Ort/Adresse
Effretikon
Nutzung
Mehrzweckanlage
Auftragsart
Projektwettbewerb im offenen Verfahren
Programm
Feuerwehr, Ambulanz, Städtische Werke, Sammelstelle
Ausführung
2020
Bausumme
15 Mio CHF
AuftraggeberIn
Stadt Illnau-Effretikon
Architektur | Städtebau
studio te GmbH und Patrick Meier Architectum GmbH











Mit dem Neubau der Mehrzweckanlage Effretikon entsteht eine zukunftsgerichtete Anlage. Sie besticht durch ihre Einfachheit und setzt die betriebstechnischen Abläufe an erste Stelle. Eine zentrale Mittelachse als vielseitige Nutzungsschicht schafft Synergien zwischen den einzelnen Nutzern und bildet das Rückgrat der neuen Anlage. Die ausgeklügelte Holzskelettbauweise vereint die drei Nutzungen auf eine elegante Art unter einem gemeinsamen Dach.
Zusammenarbeit
studio te GmbH, Zürich
Ort/Adresse
Effretikon
Nutzung
Mehrzweckanlage
Auftragsart
Projektwettbewerb im offenen Verfahren
Programm
Feuerwehr, Ambulanz, Städtische Werke, Sammelstelle
Ausführung
2020
Bausumme
15 Mio CHF
AuftraggeberIn
Stadt Illnau-Effretikon
Architektur | Städtebau
studio te GmbH und Patrick Meier Architectum GmbH