





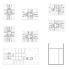
Dem Projekt zugrunde liegt der Bebauungsplan von Herzog und de Meuron. Auf dieser Grundlage wurden die beiden Volumina des Parkhauses und des Dienstleistungsgebäudes auf der Baulinie entlang der Route des Ronquoz platziert. Das Servicegebäude besteht aus einem dreistöckigen Sockel. Auf diesem Sockel stehen zwei Türme. Im Südwesten steht ein dreistöckiger Turm senkrecht zur Hauptstraße und gibt somit den Startschuss zum neuen Quartierteil. Sein großer fünfstöckiger Bruder gibt dem Innenpark den Rahmen und den Akzent und bildet eine Krone.
Zusammenarbeit
studio te GmbH, Zürich
Ort/Adresse
OIKEN Sion
Nutzung
Büro, Wohnen und Technik
Auftragsart
Projektwettbewerb im offenen Verfahren 2022 - 3. Preis
Programm
Umspannwerk, Parkhaus, Büro- und Wohnnutzungen
Bausumme
45 Mio CHF
AuftraggeberIn
OIKEN SA, Sion






Dem Projekt zugrunde liegt der Bebauungsplan von Herzog und de Meuron. Auf dieser Grundlage wurden die beiden Volumina des Parkhauses und des Dienstleistungsgebäudes auf der Baulinie entlang der Route des Ronquoz platziert. Das Servicegebäude besteht aus einem dreistöckigen Sockel. Auf diesem Sockel stehen zwei Türme. Im Südwesten steht ein dreistöckiger Turm senkrecht zur Hauptstraße und gibt somit den Startschuss zum neuen Quartierteil. Sein großer fünfstöckiger Bruder gibt dem Innenpark den Rahmen und den Akzent und bildet eine Krone.
Zusammenarbeit
studio te GmbH, Zürich
Ort/Adresse
OIKEN Sion
Nutzung
Büro, Wohnen und Technik
Auftragsart
Projektwettbewerb im offenen Verfahren 2022 - 3. Preis
Programm
Umspannwerk, Parkhaus, Büro- und Wohnnutzungen
Bausumme
45 Mio CHF
AuftraggeberIn
OIKEN SA, Sion