





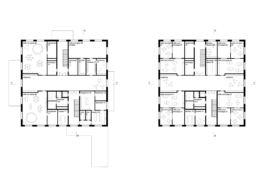
Le nouveau bâtiment du jardin d‘enfants et de l‘école de jour est un élément urbain et social important pour la commune de Tavannes. Le volume proposé confirme son importance par son implantation précise au sud du site, son échelle et son expression architecturale. L‘emplacement du nouveau bâtiment définit clairement la limite sud du site scolaire. Cette implantation ainsi que la généreuse place au nord du projet renforce l’ensemble et construit une unité cohérente. Le projet est basé sur un plan compact et carré sur trois étages seulement. Le volume résultant s’insère bien dans l’échelle du contexte résidentiel des alentours grâce à ses dimensions modestes et l’écart respectueux et homogène avec les bâtiments voisins. Le projet propose une approche sensible avec le tissu bâti de Tavannes, simultanément urbain et villageois. Il participe à la densité modérée du lieu, basée sur une trame espacée et cohésive qui met en valeur l’espace public tout comme le paysage environnant. L’organisation interne tient compte de l‘utilisation scolaire ainsi que des activités extrascolaires et publiques. Avec des noyaux séparés, les usages internes sont indépendants les uns des autres et clairement structurés par une halle centrale à chaque étage.
Ort/Adresse
Tavannes
Nutzung
Schule
Auftragsart
Wettbewerb im offenen Verfahren
AuftraggeberIn
Municipalité de Tavannes






Le nouveau bâtiment du jardin d‘enfants et de l‘école de jour est un élément urbain et social important pour la commune de Tavannes. Le volume proposé confirme son importance par son implantation précise au sud du site, son échelle et son expression architecturale. L‘emplacement du nouveau bâtiment définit clairement la limite sud du site scolaire. Cette implantation ainsi que la généreuse place au nord du projet renforce l’ensemble et construit une unité cohérente. Le projet est basé sur un plan compact et carré sur trois étages seulement. Le volume résultant s’insère bien dans l’échelle du contexte résidentiel des alentours grâce à ses dimensions modestes et l’écart respectueux et homogène avec les bâtiments voisins. Le projet propose une approche sensible avec le tissu bâti de Tavannes, simultanément urbain et villageois. Il participe à la densité modérée du lieu, basée sur une trame espacée et cohésive qui met en valeur l’espace public tout comme le paysage environnant. L’organisation interne tient compte de l‘utilisation scolaire ainsi que des activités extrascolaires et publiques. Avec des noyaux séparés, les usages internes sont indépendants les uns des autres et clairement structurés par une halle centrale à chaque étage.
Ort/Adresse
Tavannes
Nutzung
Schule
Auftragsart
Wettbewerb im offenen Verfahren
AuftraggeberIn
Municipalité de Tavannes